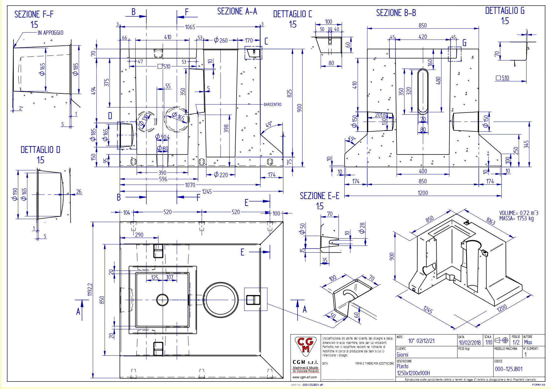
Descrizione
CARATTERISTICHE
Il plinto per pali di illuminazione è stato progettato per ottimizzare l’utilizzabilità e la posa in opera, senza tralasciare il fattore sicurezza.
Ogni plinto viene opportunamente scelto verificando la zona di ubicazione, le caratteristiche del palo, il terreno, in stretta collaborazione con la committenza.
A supporto viene fornita la relazione di calcolo conforme alle NTC 2018. Il tutto per garantire affidabilità, velocità di posa, durabilità nel tempo.
Punti di forza
• Scelta del plinto più adeguato alle condizioni al contorno progettuali
• Scavo ottimizzato per le dimensioni di ogni singolo plinto
• Innesto corrugati di linea elettrica facilitato.
• Pozzetto direttamente collegato al palo d’illuminazione.
• Facilità e rapidità di posa in opera.
• Relazione di calcolo specifica per l’ubicazione e il tipo di palo
Con PP 085 Hmax palo di illuminazione: 7,00 m.
Con PP 086 Hmax palo di illuminazione: 9,00 m.
L’altezza del palo può variare notevolmente in funzione del sito di ubicazione.













